En af de få store lejligheder i Kolding er til salg og den ligger direkte ned til åen.
En ejendom/bolig med fantastiske muligheder.
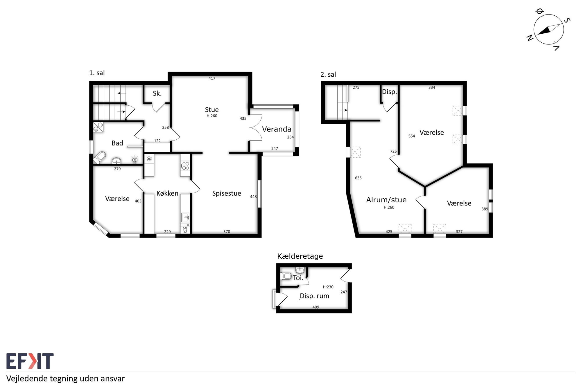
Denne charmerende ejerlejlighed i to plan byder på hele 150 m² bolig i en af Koldings mest stemningsfulde kvarterer. Her får du fornemmelsen af byhus – men med færre forpligtelser og en placering, der forener ro, natur og byliv. Fra den private have har du direkte adgang til åens rolige løb, og på kun 5 minutter er du i Kolding centrum – enten til fods eller med en kanotur fra baghaven.
Stueplan byder på to højloftede stuer en suite med smukke stuklofter og originale, afhøvlede plankegulve. Herfra er der direkte adgang til en skøn, vestvendt veranda/udestue, som tilfører rummet et smukt lysindfald.
Køkkenet er lyst, funktionelt og velindrettet med god bordplads og skuffeopbevaring. Derudover rummer etagen et indbydende soveværelse samt et brusebadeværelse. En veldisponeret fordelergang med depotrum og indbygget skab.
Via den interne trappe ledes du op til boligens øverste plan, hvor en hyggelig og rummelig stue/alrum med synlige bjælker og store tagvinduer danner centrum. Herfra er der adgang til to regulære værelser med skråvægge og tagvinduer. Et depotrum med eksisterende faldstamme giver mulighed for at etablere ekstra badeværelse eller gæstetoilet.
Etagen fungerer ideelt som teenageafdeling, kontorområde, gæstefløj – eller til delebolig.
Ekstra faciliteter: Kælder med gulvvarme, udhus og terrasse ved åen.
Ejendommen rummer også et kælderrum med gulvvarme og med direkte adgang til eget toilet samt udgang til en sydvendt, flisebelagt terrasse og den charmerende have med Kolding Å forenden. Derudover medfølger et nyere udhus med træterrasse – perfekt til opbevaring, kreativt værksted eller hyggelige sommeraftener.
Ejerforeningen råder bl.a. over fælles trailer samt kælderrum med fjernvarmeinstallation og teknik. Ejerforeningen har planlagt facaderenovering i august/september 2026.
Beliggenheden på Dr. Fichs Vej er noget ganske særligt – en af byens gamle, stemningsfulde gader med smukke byhuse og villaer fra 1900-tallet. Her bor du fredeligt og centralt med kun få hundrede meter til gågaden, indkøb, caféer og kulturliv – og samtidig tæt på skoler, institutioner, uddannelser og motorvejsnettet.
Et unikt hjem med masser af sjæl – og masser af muligheder.

